Domov šitý na mieru: váš moderný 4-izbový rodinný dom, Žilina – Višňové, Cena: 236.900€

Detail ponuky

Ponuka číslo: ZA015874

Popis

PREČO PRÁVE TENTO DOM?
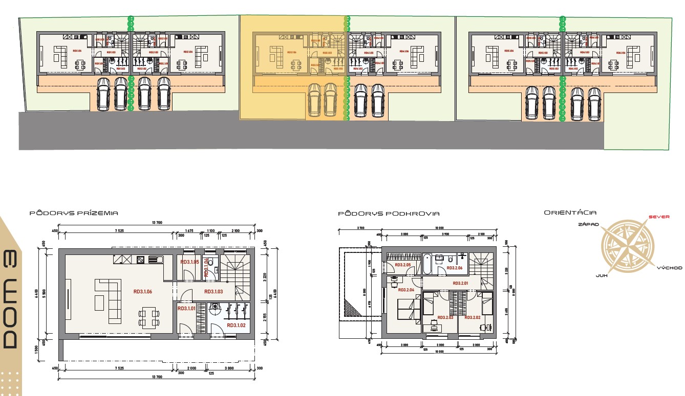
126,31 m² úžitkovej plochy + priestranná terasa 17,60 m² + vlastný pozemok 240 m² v súkromnej ulici. Samostatná jednotka v modernej radovej výstavbe, overení dodávatelia s dlhoročnou praxou, architektúra s dôrazom na funkčnosť aj estetiku.
BONUS: Hrubá stavba za 236.900 € alebo štandard na kľúč za 339.900 €. Sami sa rozhodnite, ako ďaleko chcete ísť.

LOKALITA S PRIDANOU HODNOTOU
Višňové pri Žiline je synonymom pokojného bývania s kompletnou občianskou vybavenosťou a prírodou na dosah. Lesíky, háje, poľné chodníky pre bežcov, cyklistov aj milovníkov prechádzok. Malebná Višňovská dolina s lezeckými stenami a krasovými útvarmi, lyžiarske stredisko 5 minút, v obci letné kúpalisko s ihriskami. Žilina a jej vymoženosti 10 minút jazdy, výjazd na rýchlostnú komunikáciu 10 minút. Pravidelné prímestské autobusové spoje.

ŽIVOT NA DVOCH ÚROVNIACH
PRÍZEMIE: Veľkorysá obývacia izba prepojená s kuchyňou a jedálňou /41,31 m²/, komora, samostatná toaleta, zádverie s chodbou, technická miestnosť. Priamy výstup na terasu.
POSCHODIE: 3 samostatné izby /10,96 m2, 14,92 m2, 10,96 m2/  – spálňa, detské izby, pracovňa alebo hosťovská, šatník, chodba, kúpeľňa s miestom pre vaňu aj sprchovací kút.

BEZ STAROSTÍ
Výstavbu zabezpečujú overení dodávatelia s dlhoročnou praxou. Architektonicky zaujímavé riešenia, kvalitné materiály, precízne spracovanie. Radový rodinný dom na súkromnej ulici = pocit samostatného domu s výhodou jednoduchšej údržby.
Parkovanie: 2 vonkajšie státia.
Inžinierske siete: obecná voda, elektrina, kanalizácia. Vykurovanie tepelným čerpadlom.

VŠETKO NA DOSAH RUKY
Občianska vybavenosť: materská a základná škola, kultúrny dom, nákupné stredisko, pošta, ambulancia praktického lekára, telocvičňa, multifunkčné ihrisko, detské ihriská, verejné kúpalisko s ihriskom pre plážový volejbal, workoutové športovisko, gastro prevádzky, penzión, pekáreň, kaderníctvo. Kompletná infraštruktúra vrátane wifi zóny a kamerového systému na frekventovaných lokalitách.

Dostupnosť: ihneď
Cena: Hrubá stavba 236.900 € | Štandard 339.900 €


Nájdete na stránke realityMGM.sk pod ID ZA015874.
Call centrum tel: 0910 86 11 86.



Cena
Typ nehnuteľnosti Domy
Inzertná kategória Predaj
Stav nehnuteľnosti Novostavba
Podlahová plocha 126.31 m2
Výmera pozemkov 240 m2


Višňové

Obec leží vo východnej časti Žilinskej kotliny na náplavovom kuželi Višňovského potoka. Severnú pahorkatinnú časť chotára tvoria štrkové nánosy, južnú hornatinnú v Lúčanskej Malej Fatre druhohorné horniny. Prevládajú hnedé lesné pôdy. Lesy sú len v južnej časti chotára. Obec sa spomína v r. 1393. Patrila panstvu Lietava, začas panstvu Strečno. V r. 1598 mala 24 domov, v r. 1720 25 daňovníkov a v r. 1828 bolo v obci 92 domov a 113 obyvateľov, ktorí sa zaoberali poľnohosp., chovom dobytka a nádenníctvom. V obci je kameňolom. Obyvatelia pracujú prevažne v okolitých obciach. Obec má vybudovaný verejný vodovod a rozvodnú sieť plynu. V r. 1976-1982 vybudovaný moderný kultúrny dom, športový areál s prírodným kúpaliskom a lyžiarsky areál. K pamiatkam obce patrí rím. kat. kostol (staviteľ P. Miller), ktorý bol postavený na mieste staršieho gotického (spomínaného 1514). V r. 1816 - 1820 bol doplnený dvoma vežami a výmaľbou od J. Hanulu (1902). Väčšina vnútorného zariadenia je baroková. V obci boli aj dve kúrie, jedna z konca 18. stor. a druhá z 1. polovice 19. stor., obe sú asanované.


Okres Žilina

Má rozlohu 815,08 km², žije tu 155 989 obyvateľov a priemerná hustota zaľudnenia je 191 obyvateľov na km² (údaje k 31. 12. 2014).

Územie susedí na severe s okresmi Čadca a Kysucké Nové Mesto, na západe s okresmi Bytča, Považská Bystrica a Ilava, na juhu s okresom Prievidza a na východe s okresmi Martin a Dolný Kubín.

Prvé písomné zmienky o väčšine obcí okolia Žiliny sú z 13. a 14. storočia. Neskôr, počas valašskej a kopaničiarskej kolonizácie, boli osídlené obce pri horných tokoch riek a na úpätiach hôr Malej Fatry (Lysica, Dolná, Horná Tižina, Terchová).

Obyvateľstvo starého kultúrneho územia úrodnejšej časti okolia Žiliny sa zaoberalo poľnohospodárstvom, roľníci horských kopaničiarskych obcí boli viac zameraní na chov hospodárskych zvierat. Obrábali aj vysoko položené polia a využívali horské pasienky v odľahlom chotári, kde mali vybudované letné príbytky a maštale, tzv. bačoviská (cholvarky). Väčší význam mal salašnícky chov oviec s produkciou mliečnych výrobkov, mäsa, vlny a kožušiny. Úžitok prinášalo napokon aj výdatné hnojenie košarovanej pôdy. Salašnícky forma chovu oviec sa do súčasnosti zachovala vo viacerých obciach severozápadného Slovenska, v Terchovej a Belej pri Varíne nadobudla charakter družstevnej veľkovýroby.


Žilinský kraj

Demografia

K 21. máju 2011, bolo na území Žilinského kraja 144 948 domov, t.j. 13,5 % z celkového počtu domov v Slovenskej republike (z toho 120 788 obývaných, t.j. 83,3 %). Žilinský kraj bol v počte domov na druhom mieste za Nitrianskym krajom (podiel 16,2 %). Spomedzi okresov kraja najvyšší počet domov sa nachádzal v Žiline 20,3 % a najmenej v Turčianskych Tepliciach 3,3 %. Obývaných domov bolo v okrese Žilina 21,1 % z úhrnu za kraj a v Turčianskych Tepliciach 3,2 %.

Geologická charakteristika

Celé toto hornaté územie spadá z geomorfologického hľadiska do Západných Karpát. Horské masívy v tejto lokalite sa sformovali pomerne nedávno, v paleogéne. Zásluhou pohybov príkrovov sa vyzdvihovali pôvodné morské sedimenty, z ktorých postupne vznikli impozantné údolia. Rieka Váh územie nápadne rozdeľuje na dve časti:

  • severná zahŕňa pohoria: Tatry, Skorušinské vrchy, Oravské Beskydy, Oravská Magura, Oravská vrchovina, Chočské vrchy, Krivánska Fatra, Kysucké Beskydy, Kysucká vrchovina a Javorníky
  • južná zahŕňa pohoria: Nízke Tatry, Veľká Fatra, Lúčanská Fatra a Strážovské vrchy

Dejiny

Po páde Veľkomoravskej ríše v roku 907, ku ktorej územie patrilo, bolo od 12. storočia prakticky až do roku 1918 súčasťou uhorského kráľovstva. V 13. storočí na obranu proti mongolským nájazdom bola vybudovaná sieť hradov (Hričov, Považský, Košecký, Lietavský, Strečniansky). 16. storočie znamenalo pre miestnych obyvateľov chudobu a strach, hlavne pred tureckou okupáciou a živelnými pohromami. Ku koncu 19. storočia tu bola zavedená železnica a v údolí Váhu začal prekvitať priemysel.


Stručná história Slovenska

Prvý štátny útvar Slovanov na území dnešného Slovenska bola Samova ríša (7. storočie), neskôr Nitrianske kniežatstvo (začiatok 9. storočia), ktorého spojením s Moravským kniežatstvom vznikla v roku 833 Veľká Morava. Od polovice 10. do konca 11. storočia sa územie Slovenska postupne začlenilo do Uhorska, ktoré sa v roku 1526 stalo súčasťou Rakúskej monarchie (Habsburskej monarchie), od roku 1867 nazývanej Rakúsko-Uhorsko. Po rozpade Rakúsko-Uhorska v roku 1918 bolo Slovensko súčasťou Česko-Slovenska až do roku 1993 (okrem obdobia samostatnosti počas vojnovej Slovenskej republiky). 1. januára 1993 vznikla rozdelením tohto štátneho útvaru samostatná Slovenská republika.

Slovenská republika je parlamentnou demokraciou, štátnym jazykom je slovenčina. Od 1. mája 2004 je Slovensko členom Európskej únie, od 21. decembra 2007 je členom Schengenského priestoru. Od 1. januára 2009 je 16. členom Európskej menovej únie – eurozóny a oficiálnou menou sa stalo euro, ktoré vystriedalo slovenskú korunu.