Prenájom kancelárií s vlastným parkoviskom, Žilina - Klemensova ul., Cena: 825€/mesačne

Navrhnite lepšiu cenu

825 €/mesiac

Detail ponuky

Ponuka číslo: ZA015936

Popis

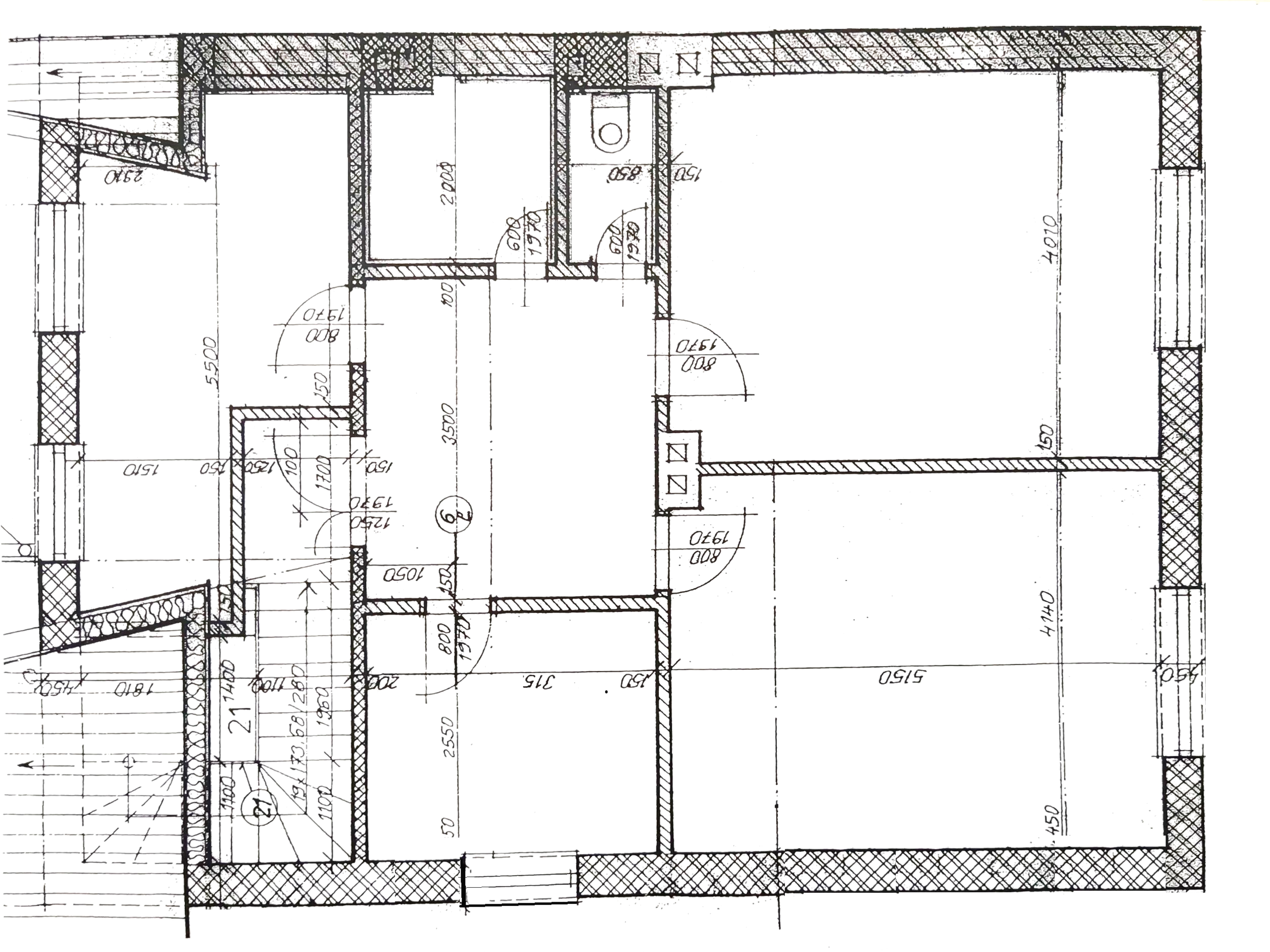
Ponúkame Vám na prenájom kancelárske priestory o výmere 91 m² v atraktívnej lokalite na Klemensovej ulici v Žiline, s vynikajúcou dopravnou dostupnosťou. Priestory sa nachádzajú na 1. poschodí a parkovanie je v oplotenom areáli, priamo pri budove, kde je k dispozícii 8–10 parkovacích miest.

Dispozícia priestoru:

  • Vstupná chodba
  • 4 samostatné kancelárie (jedna s kuchynkou)
  • Kúpeľňa so sprchovým kútom
  • Samostatné WC
  • Priestory sú vybavené alarmom a prevádzková doba objektu je 24 hodín
  • Možnosť umiestnenia reklamy na fasáde budovy

Cena:

  • Prenájom: 825 € + energie/mesiac
  • Prenájom parkovacieho miesta: 30 € / miesto
  • Vyúčtovanie energií štvrťročne
  • Jednorazový administratívny poplatok: 200 €

Tieto kancelárske priestory sú ideálnou voľbou pre firmy, ktoré hľadajú komfortné a dobre prístupné priestory v Žiline. V prípade záujmu nás kontaktujte pre viac informácií.

ID nehnuteľnosti: ZA 015936 na stránke realityMGM.sk. Pre obhliadky a viac informácií nás neváhajte kontaktovať na tel. čísle: 0910 86 11 86.



Cena
Typ nehnuteľnosti Komerčné objekty
Inzertná kategória Prenájom
Stav nehnuteľnosti Štandard
Podlahová plocha 91 m2
Kraj Žilinský kraj
Okres Žilina
Obec Žilina
Časť Staré mesto


Mesto Žilina

Žilina  ( lat. Solna, maď. Zsolna, nem. Sillein alebo Silein, poľ. Żylina) je krajské a okresné mesto na severnom Slovensku. Leží na sútoku riek Váh, Kysuca a Rajčanka.

Počtom obyvateľov (83 643 osôb) je Žilina štvrtým najväčším mestom na Slovensku.Je administratívnym, hospodárskym, dopravným a kultúrnym centrom severozápadného Slovenska, leží na zemepisnej súradnici 49°13′24.39″S 18°44′21.58″ . Jej rozloha je 80,03 km² a nadmorská výška Mariánskeho námestia (historického centra) je 345 m n. m.

Historické jadro Žiliny je mestskou pamiatkovou rezerváciou. Centrom mesta je štvorcové Mariánske námestie s arkádami po celom obvode a dvomi priľahlými ulicami, ktoré sa začalo formovať v 12. storočí. Na námestí sa nachádza Kostol Obrátenia svätého Pavla s kláštorom, stará budova radnice so zvonkohrou a baroková socha Nepoškvrnenej Panny Márie (Immaculata) z roku 1738, ktorá stojí uprostred námestia. Vybudovaná bola na počesť ukončenia rekatolizácie v meste. Neďaleko námestia stojí Katedrála Najsvätejšej Trojice, vedľa neho Burianova veža.

Najvyššou stavbou, resp. konštrukciou v Žiline je komín teplárne s výškou 192 metrov z roku 1982.

Geografia

Leží na severozápadnom okraji žilinskej kotliny pri vyústení Rajčianky a Kysuce do Váhu. Pahorkatinný až vrchovinový povrch chotára tvoria v kotline prevažne málo odolné ílovce centrálno-karpatského treťohorného flyšu, v Kysuckých vrchoch o niečo odolnejšie druhohorné usadeniny bradlového pásma, slienité a bridlicovité horniny a odrody vápencov. Okrem budatínskej časti, ktorá je na juhovýchodnom okraji Kysuckých vrchov, sa rozkladá na terasových plošinách zo štvrtohorných riečnych štrkových nánosov prekryté sprašami a sprašovými hlinami a na nivách Váhu, Rajčianky a Tŕňovky. Má mierne teplé, vlhké podnebie. Priemerná ročná teplota je okolo 8 °C, januárová -3 až -4 °C, júlová okolo 18 °C. Priemerný ročný úhrn zrážok je 700 - 800 mm. Prevládajú hnedé lesné, nivné a ilimerizované pôdy. V kotlinovej časti sú parkovité ihličnaté lesíky, na stráňach Dubňa rozsiahlejší, prevažne ihličnatý komplex. V lesoch Malej Fatry žije hlavne tetrov hoľniak a jariabok, okolo Váhu divé kačice. V Budatíne je prírodný park so statnými jedincami hlavne platanov a topoľov.

 

Hospodárstvo

Prvé stopy prítomnosti človeka na území mesta pochádzajú z poslednej doby ľadovej, okolo r. 20000 pred n. l. Vďaka priaznivým podmienkam po príchode Slovanov v 5. stor. sa začalo trvalejšie osídlenie vo viacerých menších osadách, z ktorých potom vzniklo mesto. Žilina sa prvý raz spomína už v r. 1208. Žilinskí Slováci spolu s nemeckými kolonistami z Tešína získali mestské privilégiá okolo r. 1290 a vybudovali mesto na dnešnom Mariánskom námestí. Tu už predtým bola staršia slovenská osada a hrad, ktorý sa neskôr zmenil na farský kostol. Toto centrum mesta bolo v 15. stor. spolu s okolitými ulicami opevnené hradbami a priekopami, čo sa dodnes zachovalo v názvoch ulíc Horný a Dolný val. Murované hradby Žilina nikdy nemala. Opevnenie mesta pozostávalo iba z hlinených valov, drevených palisád a vodnej priekopy. Prvá zmienka o Žiline ako meste je z r. 1312, prvé zachované mestské privilégium je z r. 1321. V tom čase bolo mesto majetkom kráľa. Rozvinuli sa tu remeslá a obchod a mesto sa stalo právnym strediskom pre celú oblasť Kysúc a Považia, ako aj obcí a iných častí severozápadného Slovenska. Žilinčania boli zakladateľmi mnohých obcí na tomto území. Diaľkový obchod s ovčou vlnou a súkennými výrobkami i so zahraničím prispel k rozmachu mesta. Rozvinulo sa tu školstvo, kultúrna vyspelosť sa odzrkadlila v písomných pamiatkach, napríklad v Žilinskej knihe z r. 1378. Pre dejiny Slovákov je významný prvý knižný zápis v slovenčine z r. 1451 a najmä Privilégium pre žilinských Slovákov z r. 1381, ktorým kráľ Ľudovít pri svojej návšteve mesta zrovnoprávnil Slovákov s Nemcami. Od 16. stor. obývali mesto len Slováci. Približne koncom 15. a začiatkom 16. stor. mesto prestalo byť kráľovským majetkom a stalo sa majetkom Strečnianskeho panstva, čo z právneho hľadiska znamenalo, že malo štatút zemepánskeho mestečka. Avšak aj v tomto postavení si Žilina zachovala všetky práva slobodného mesta.

Najväčší rozkvet mesta bol v stredoveku v 16. a 17. stor. V 18 cechoch sa rozvinula výroba, ktorá priniesla Žiline a jej obyvateľom prosperitu. Ročne sa tu konalo šesť jarmokov, na hlavnom námestí boli týždenné trhy. Žilinské súkno sa predávalo v celom Uhorsku, ale i v zahraničí. Jeho výroba dosiahla stredoeurópsky význam. V r. 1542 už existovalo evanjelické gymnázium, v 17. stor. tu bola známa Dadanova tlačiareň. Žilinskí študenti študovali od 15. stor. na univerzitách v Prahe, v Nemecku, Poľsku a inde. V r. 1610 sa konala v Žiline významná synoda evanjelickej cirkvi, ktorá dala základy organizácie tejto cirkvi na Slovensku. V r. 1691 bolo založené jezuitské gymnázium, ktoré od r. 1777 prevzali františkáni. Pre architektúru mesta bola významná prestavba starších gotických domov v 16. a 17. stor. do renesančnej podoby, ktorá sa zachovala dodnes na Mariánskom námestí a v historickom jadre mesta.

V 18. stor. mesto začalo upadať v dôsledku stavovských povstaní, pobytu vojsk, úbytku obyvateľstva, moru a iných príčin. Cechová výroba stagnovala a Žilina sa nerozvíjala. V r. 1848 mesto zachvátil veľký požiar, škody spôsobilo i zemetrasenie v r. 1850. V r. 1848 a 1849 prebehli v meste boje medzi maďarskými povstalcami a cisárskymi vojakmi, s ktorými spoločne bojovali slovenskí dobrovoľníci na čele s Ľ. Štúrom a J. M. Hurbanom. Títo vystúpili na námestí a vyzvali Slovákov do boja za autonómne postavenie Slovenska. Pri pobyte vojska vyhorel v januári 1849 Budatínsky zámok. Opätovný rozvoj mesta nastal po postavení Košickobohumínskej železnice v r. 1872 a v rokoch 1883 a 1889 železnice v smere na Bratislavu a na Rajec. Tým sa Žilina stala dopravnou križovatkou, čo spolu s dostatkom dreva, vlny, vody, ako aj lacnou pracovnou silou spôsobilo, že do mesta začal prúdiť kapitál. Začal sa rozvíjať priemysel a obchod. Už v r. 1891 v súkenke, dnešnej Slovene, začali spracúvať vlnu. Súkenné výrobky a koberce vyvážali do Európy, Ameriky, Japonska atď. Súkenka bola v tom čase najmodernejšou textilkou v Uhorsku. Podobne bola úspešná i chemická továreň postavená v r. 1892 (výroba kyseliny sírovej a soľnej) a celulózka z r. 1905.

V r. 1911 mala Žilina už 10000 obyvateľov a v tom čase nastal jej stavebný rozvoj. Mesto sa rozrástlo v smere k železničnej stanici, k chemickej továrni na Závaží a v západnej časti na Frambore. Rozvoju Žiliny napomohli aj stavby moderných štátnych budov z rokov 1910 - 1914 v štýle secesnej architektúry, napríklad budova dnešnej obchodnej banky, reálnej školy (dnes Žilinská univerzita) a iné. Žilina bola vtedy tretím najdynamickejšie sa rozvíjajúcim mestom na Slovensku. Počet jej obyvateľov v priebehu konca 19. a začiatku 20. stor. vzrástol bezmála päťnásobne. Do výlučne slovenského mesta sa prisťahovali i obyvatelia iných národností, ale svoj slovenský charakter napriek národnostnému útlaku nestratilo. Slováci v meste privítali Martinskú deklaráciu a rozpad Uhorského štátu s tým, že v novom štáte budú mať autonómne postavenie. Toto očakávanie sa však naplnilo až v r. 1938, keď práve v Žiline bola vyhlásená autonómia Slovenska.

Ďalší rozvoj mesta nastal po r. 1955, keď sa začala budovať v priestore medzi Žilinou a Bytčicou zóna ľahkého priemyslu, strojárstva, stavebníctva a potravinárstva. Postupne tu vznikli významné podniky ako Váhostav, Závody valivých ložísk, Mliekárne, Tehelne, Pozemné stavby a iné. Na opačnom konci mesta pri Košickej ceste vznikla Tepláreň a Avia. Rozšírila sa výroba existujúcich nosných podnikov, najmä v celulózke a chemickej továrni.

Na spriemyselňovanie mesta nadväzovala bytová výstavba sídlisk Hliny, Vlčince, Solinky a Hájik. Okrem základných a materských škôl sa na sídliskách postavili stredné školy, zdravotnícka, ekonomická, stavebná priemyslovka, gymnáziá, konzervatórium a ľudová škola umenia (dnešná základná umelecká škola). K nim pribudli po r. 1990 cirkevné školy, gymnázium, obchodná akadémia, ale i štátne gymnázium, belgické lýceum a iné. V r. 1960 sa do mesta z Prahy premiestnila Vysoká škola dopravy a spojov, dnešná Žilinská univerzita. Vedeckú základňu dopĺňalo 11 výskumných ústavov, z ktorých však v súčasnosti už časť zanikla.

Pre rozvoj kultúry bol dôležitý vznik kultúrnych organizácií. Už v minulosti v meste existovalo divadlo, ktoré v r. 1991 obnovilo svoju činnosť pod názvom Mestské divadlo. V r. 1942 vzniklo mestské múzeum, ktoré v súčasnosti poznáme pod názvom Považské múzeum, so sídlom v Budatínskom zámku. Profesionálny Štátny komorný orchester a Žilinský zmiešaný zbor vystupuje v budove bývalého kina, prestavaného pre jeho potreby v r. 1988. Medzi kultúrne inštitúcie patrí aj Dom odborov, Žilinská hvezdáreň, Regionálne osvetové stredisko, Žilinská knižnica, Považská galéria doplnená v súčasnosti o neštátne galérie, Mestské divadlo, Bábkové divadlo, folklórne súbory Rozsutec, Stavbár a iné.

Na území mesta sa nachádza množstvo kultúrnych pamiatok. Kostol najsvätejšej Trojice bol postavený okolo r. 1400. Trojloďový kostol bol pôvodne gotický, po prestavbe má renesančný charakter. Historické jadro mesta bolo v r. 1987 vyhlásené za mestskú pamiatkovú rezerváciu. Predovšetkým na historickom Mariánskom námestí sa zachovala stredoveká architektúra od gotiky a renesancie, s typickými podchodmi, laubňami, ktoré vytvárajú osobitnú atmosféru námestia. Námestie bolo kompletne renovované, takisto aj mestská radnica a väčšina domov, ktoré za finančnej pomoci mesta majú obnovené pôvodné štíty. Renovované boli i protiľahlé ulice a pešia zóna v smere na železničnú stanicu, ako aj Námestie Andreja Hlinku s jeho sochou. Obnovená bola i najstaršia stavebná pamiatka mesta, kostol sv. Štefana na ceste do Závodia so zachovanými freskami Ježiša a dvanástich apoštolov. Podľa niektorých autorov kostol pochádza z obdobia Veľkej Moravy. Mesto má i ďalšie stavebné skvosty, pôvodne gotický farský kostol, barokové kostoly sv. Pavla a Barbory (sirotársky a františkánsky), modernú synagógu z r. 1935 a mnohé ďalšie. Pri archeologickom výskume v r. 1995 sa objavili základy Kaplnky Božieho tela z 15. stor., o ktorej boli dovtedy iba písomné záznamy.

Budatínsky zámok sa nachádza na sútoku Váhu a Kysuce. Ako strážny hrad vznikol v 13. stor. Najstaršou časťou je valcovitá veža vysoká 20 metrov o priemere 12 metrov a s múrmi hrubými 2 metre. Dnes sídli v zámku Považské múzeum s expozíciou dejín Žiliny a archeológie. Zvláštnosťou je drotárska expozícia, jediná svojho druhu na svete.

Krajské mesto sa môže pochváliť množstvom galérií a múzeí i bábkovým divadlom. Sídli v ňom aj Žilinská univerzita so šiestimi fakultami.

V poslednom období boli postavené nové budovy, najmä bánk, ktorých je v meste spolu 18 s viacerými pobočkami.

Žilina patrí medzi najvýznamnejšie mestá v Slovenskej republike, bola a aj je centrom severozápadného Slovenska. Toto svoje postavenie získala vďaka geografickým podmienkam, ale aj historickému vývinu. Leží v Žilinskej kotline na sútoku troch riek, Váhu, Kysuce a Rajčianky, na križovatke medzinárodných cestných trás E 50 a E/75, spájajúcich sever Európy s juhom a východ so západnou časťou nášho kontinentu, a im podobných železničných trás. V blízkosti Žiliny sa vybudovalo regionálne letisko v neďalekej obci Dolný Hričov, ktoré má štatút verejného medzinárodného letiska. Pomáha rozvoju medzinárodných stykov i vnútroštátneho obchodu.

Demografia

Osídlenie sa datuje až do paleolitu a odvtedy nepretržite počas jednotlivých historických období. Najväčší rozvoj mesta bol v období rozvoja cechovej výroby, najmä súkenníctva. S tým súvisel aj rast počtu obyvateľstva. V r. 1700 malo mesto 2682 obyvateľov. Zástavba Žiliny bola minimálne od polovice 17. stor. na tých istých miestach ako v r. 1849. Do r. 1870 sa počet obyvateľov a územný rast mesta v podstate nemenil. Neskôr počet mierne rástol (v r. 1850 mala 2040, v r. 1869 mala 2870 obyv.). V dôsledku toho sa Žilina v r. 1874 zmenila na veľkú obec a tento štatút mala až do r. 1911, keď sa po dosiahnutí počtu 10000 stala opäť mestom. Po vybudovaní železnice v r. 1873 a rastom priemyslu nastal prudký rast obyvateľstva. Postupne po r. 1880 vznikali nové sídliskové útvary, tzv. kolónie pri najväčších závodoch.

Územný a demografický vývin mesta bol v 20. stor. ovplyvnený pričleňovaním, resp. odčleňovaním susedných obcí. Kým do r. 1949 mali všetky dnešné obce patriace do Žiliny územnú i riadiacu samostatnosť, postupne nastala ich integrácia. Od r. 1949 sa stali súčasťou mesta obce Závodie a Budatín, od r. 1970 Bánová, Považský Chlmec, Bytčica, Strážov a Trnové, po r. 1980 i Višňové, Rosina, Mojšova Lúčka, Zádubnie, Zástranie, Vranie, Brodno, Porúbka, Lietavská Lúčka, Turie a Teplička. Vďaka tomu bola Žilina tretím najväčším mestom Slovenska. V r. 1986 už mala 92000 obyvateľov. Dňa 23. novembra 1990 sa od mesta odlúčili obce Lietavská Lúčka, Porúbka, Višňové, Rosina, Turie a Teplička nad Váhom, čo spôsobilo pokles obyvateľov mesta v r. 1991 na 83853. V r. 2000 malo mesto 86679 obyvateľov, z toho 41651 mužov a 45028 žien.

Mesto Žilina je dnes moderným priemyselným, dopravným, obchodným, turistickým a kultúrnym strediskom Žilinského kraja.

Žilina bola rodiskom, respektíve pôsobisko, množstva významných osobností, ako boli napríklad: Jur Bánovský-Sklenár, skladateľ duchovných piesní, D. Dúbravius, pedagóg, E. Gerometta, národný pracovník, E. Ladiver, filozof a dramatik, Š. Martinček, organizátor slovenského národného hnutia, A. Petrovský-Šichman, archeológ, J. Žucha, zakladateľ slovenskej neurochirurgie, H. Gavlovič, barokový básnik, I. Hálek, lekár a spisovateľ, J. Božetech Klemens, maliar, A. Lombardini, historik a publicista, výtvarníci Ľudovít Fulla, Vincent Hložník, spisovateľ Emo Bohúň, básnik Ján Frátrik a mnohí ďalší.

Časť Bánová sa spomína ako osada v r. 1208 ako obec r. 1393. Patrila panstvu Lietava. V r. 1598 mala 18 domov a v r. 1828 56 domov a 386 obyvateľov. V r. 1970 bola pripojená k Žiline.

Časť Budatín sa v r. 1321 spomína ako mýtne miesto. Obec patrila panstvu Budatín. Tunajší hrad je listinne doložený v r. 1321, počiatky stavby hradu však spadajú do 2. polovice 13. stor. Začiatkom 14. stor. bol majiteľom Matúš Csák, neskôr kráľ, rod Sunyog a napokon od r. 1798 do 1945 rodina Csáky. Zámok v r. 1848 vyhorel počas bojov slovenských dobrovoľníkov. V r. 1870 bol opravený a definitívne bol zreštaurovaný v r. 1920 - 1922. V r. 1598 mala obec 13 domov a v r. 1720 mala majer, v r. 1828 mala 37 domov a 351 obyvateľov. V r. 1949 bol Budatín pričlenený k Žiline.

Časť Bytčica sa ako obec s dedičným richtárom spomína r. 1409. Patrila panstvu Lietava. V časoch pred tolerančným patentom tu bolo ev. a. v. oratórium. V r. 1598 mala mlyn a 19 domov, v r. 1828 50 domov a 555 obyvateľov. V r. 1970 bola zlúčená so Žilinou.

Časť Považský Chlmec sa spomína ako obec v r. 1438. Patril panstvu Budatín, neskôr časť zemianskej rodine Višňovských. V r. 1598 mala 30 domov, r. 1720 23 daňovníkov, a r. 1828 81 domov, 621 obyvateľov. Časť chotára bola zaplavená výstavbou priehrady v Hornom Hričove. Obec bola v r. 1970 pričlenená k Žiline

Časť Trnové sa spomína ako obec v r. 1393. Patrila panstvu Lietava. V r. 1598 mala 23 domov a r. 1828 57 domov a 690 obyvateľov. Obec bola v r. 1970 pripojená k Žiline.

Časť Závodie sa spomína ako obec v r. 1351, keď sa dedičným richtárom stal žilinský mešťan Mikuláš. Časť obce patrila panstvu Lietava, časť zemianskej rodine Závodských. V r. 1598 mala obec 29 domov a v r. 1828 56 domov a 556 obyvateľov. V r. 1949 bola obec pričlenená k Žiline.
M. č.: Bánová, Brodno, Budatín, Bytčica, Celulózka, Mojšova Lúčka, Považský Chlmec, Strážov, Trnové, Vranie, Zádubnie, Zástranie, Závodie, Žilina, Žilinská Lehota.


Okres Žilina

Má rozlohu 815,08 km², žije tu 155 989 obyvateľov a priemerná hustota zaľudnenia je 191 obyvateľov na km² (údaje k 31. 12. 2014).

Územie susedí na severe s okresmi Čadca a Kysucké Nové Mesto, na západe s okresmi Bytča, Považská Bystrica a Ilava, na juhu s okresom Prievidza a na východe s okresmi Martin a Dolný Kubín.

Prvé písomné zmienky o väčšine obcí okolia Žiliny sú z 13. a 14. storočia. Neskôr, počas valašskej a kopaničiarskej kolonizácie, boli osídlené obce pri horných tokoch riek a na úpätiach hôr Malej Fatry (Lysica, Dolná, Horná Tižina, Terchová).

Obyvateľstvo starého kultúrneho územia úrodnejšej časti okolia Žiliny sa zaoberalo poľnohospodárstvom, roľníci horských kopaničiarskych obcí boli viac zameraní na chov hospodárskych zvierat. Obrábali aj vysoko položené polia a využívali horské pasienky v odľahlom chotári, kde mali vybudované letné príbytky a maštale, tzv. bačoviská (cholvarky). Väčší význam mal salašnícky chov oviec s produkciou mliečnych výrobkov, mäsa, vlny a kožušiny. Úžitok prinášalo napokon aj výdatné hnojenie košarovanej pôdy. Salašnícky forma chovu oviec sa do súčasnosti zachovala vo viacerých obciach severozápadného Slovenska, v Terchovej a Belej pri Varíne nadobudla charakter družstevnej veľkovýroby.


Žilinský kraj

Demografia

K 21. máju 2011, bolo na území Žilinského kraja 144 948 domov, t.j. 13,5 % z celkového počtu domov v Slovenskej republike (z toho 120 788 obývaných, t.j. 83,3 %). Žilinský kraj bol v počte domov na druhom mieste za Nitrianskym krajom (podiel 16,2 %). Spomedzi okresov kraja najvyšší počet domov sa nachádzal v Žiline 20,3 % a najmenej v Turčianskych Tepliciach 3,3 %. Obývaných domov bolo v okrese Žilina 21,1 % z úhrnu za kraj a v Turčianskych Tepliciach 3,2 %.

Geologická charakteristika

Celé toto hornaté územie spadá z geomorfologického hľadiska do Západných Karpát. Horské masívy v tejto lokalite sa sformovali pomerne nedávno, v paleogéne. Zásluhou pohybov príkrovov sa vyzdvihovali pôvodné morské sedimenty, z ktorých postupne vznikli impozantné údolia. Rieka Váh územie nápadne rozdeľuje na dve časti:

  • severná zahŕňa pohoria: Tatry, Skorušinské vrchy, Oravské Beskydy, Oravská Magura, Oravská vrchovina, Chočské vrchy, Krivánska Fatra, Kysucké Beskydy, Kysucká vrchovina a Javorníky
  • južná zahŕňa pohoria: Nízke Tatry, Veľká Fatra, Lúčanská Fatra a Strážovské vrchy

Dejiny

Po páde Veľkomoravskej ríše v roku 907, ku ktorej územie patrilo, bolo od 12. storočia prakticky až do roku 1918 súčasťou uhorského kráľovstva. V 13. storočí na obranu proti mongolským nájazdom bola vybudovaná sieť hradov (Hričov, Považský, Košecký, Lietavský, Strečniansky). 16. storočie znamenalo pre miestnych obyvateľov chudobu a strach, hlavne pred tureckou okupáciou a živelnými pohromami. Ku koncu 19. storočia tu bola zavedená železnica a v údolí Váhu začal prekvitať priemysel.


Stručná história Slovenska

Prvý štátny útvar Slovanov na území dnešného Slovenska bola Samova ríša (7. storočie), neskôr Nitrianske kniežatstvo (začiatok 9. storočia), ktorého spojením s Moravským kniežatstvom vznikla v roku 833 Veľká Morava. Od polovice 10. do konca 11. storočia sa územie Slovenska postupne začlenilo do Uhorska, ktoré sa v roku 1526 stalo súčasťou Rakúskej monarchie (Habsburskej monarchie), od roku 1867 nazývanej Rakúsko-Uhorsko. Po rozpade Rakúsko-Uhorska v roku 1918 bolo Slovensko súčasťou Česko-Slovenska až do roku 1993 (okrem obdobia samostatnosti počas vojnovej Slovenskej republiky). 1. januára 1993 vznikla rozdelením tohto štátneho útvaru samostatná Slovenská republika.

Slovenská republika je parlamentnou demokraciou, štátnym jazykom je slovenčina. Od 1. mája 2004 je Slovensko členom Európskej únie, od 21. decembra 2007 je členom Schengenského priestoru. Od 1. januára 2009 je 16. členom Európskej menovej únie – eurozóny a oficiálnou menou sa stalo euro, ktoré vystriedalo slovenskú korunu.