EXKLUZÍVNE! Výnimočný 2,5 - izbový byt s balkónom a vlastným parkovaním, Krásno nad Kysucou

Navrhnite lepšiu cenu

500 €/mesiac

Detail ponuky

Ponuka číslo: ZA016065

Popis

PREČO PRÁVE TENTO BYT?
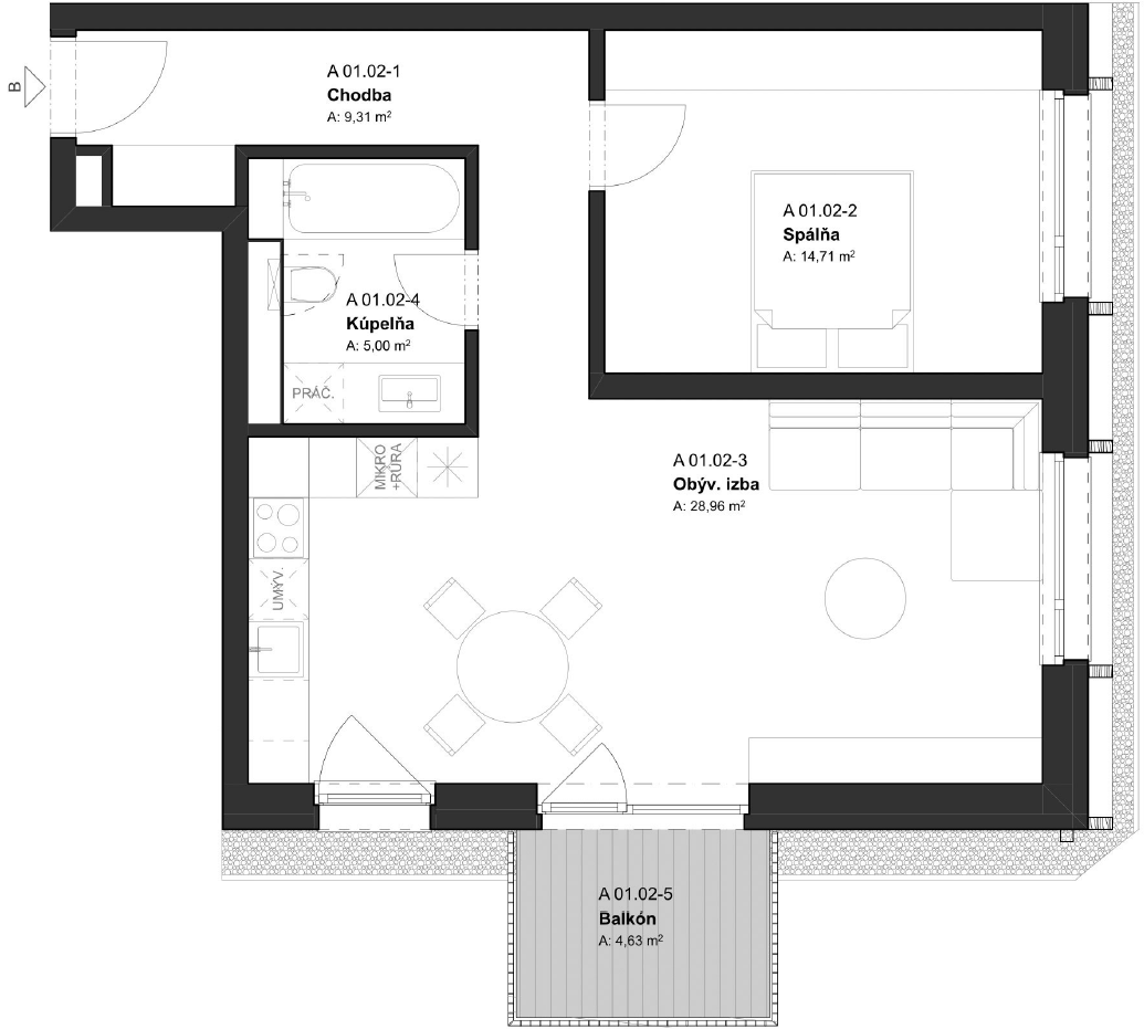
Keď sa spojí kvalita s nadhľadom vznikne tento nový a výnimočný 2,5 - izbový byt s funkčne riešenou dispozíciou a výmerou až 64,31 m2. Dômyselne zariadený priestor naviac so 4,63 m² balkónom 1,32 m² pivničnou kobkou priamo na podlaží uspokojí aj 4 - člennú rodinu. Zaparkujete na vlastnom parkovacom mieste o výmere 12 m² , kľúčom otvoríte dvere a užívate si nové bývanie v mladom a bezpečnom projekte. 

OSOBITÁ DISPOZÍCIA
Pri vstupe nájdete odkladací priestor na šatsvo, botník a zrkadlo. Srdce domu tvorí otvorený koncept kuchyne prepojenej s obývačkou, ktorá je vybavená nábytkom na mieru, kvalitnými značkovými spotrebičmi, jedálenským setom, sedacou súpravou s možnosťou spacieho lôžka, konferečným stolíkom a TV nábytkom. Dômyselným riešením tohto priestoru vznikla samostatne oddelená časť, ktorú je možné využiť ako priestor pre prácu z domu, pre hostí alebo aj ako detskú zónu pre najmenších členov rodiny. Spálňa so širokou manželskou posteľou, šatníkovou skriňou a nočnými stolíkmi je pripraená na doplnenie ďalšieho nábytku (komoda, detská postieľka či šatníková skriňa). Kúpelňa s vaňou, umývadlovou skrinkou a toaletou poskytuje dostatok priestoru pre veľkú rodinu.

Cena mesačného nájmu za byt predstavuje 500€ + vonkajšie parkovacie miesto 40€ + zálohové platby za všetky energie vrátane internetu a TV (Mágio XL balík) 150€.

Dostupnosť: voľný ihneď

Tento úplne nový byt je ideálnou voľbou pre rodiny, ktoré potrebujú viac priestoru, chcú žiť takmer v centre mesta a zároveň v blízkosti prírody

Lokalita

Nehnuteľnosť sa nachádza v obľúbenej lokalite, poskytujúcej dobrú dostupnosť do centra mesta a mnoho ďalších benefitov. V pešej dostupnosti ide o strategickú polohu nie len k občianskej vybavenosti, ale aj za rekreáciou. Lokalita má dobré dopravné napojenie na hlavnú komunikáciu Žilina - Čadca. Vďaka svojej polohe je byt výborne dostupný z neďalekého centra mesta, a pritom ponúka všetky výhody tichej a pokojnej štvrte s možnosťou oddychu. 

V meste Krásno nad Kysucou sa nachádza kompletná občianska vybavenosť, ďalej niekoľko materských a základných škôl, tiež stredná škola a zdravotné stredisko. Z rekreačných aktivít môžete využiť napríklad futbalové ihrisko s umelou trávou, lezeckú stenu, fitness, či bowling. Obľúbená MM aréna s hokejovou halou, telocvičňou, wellness sa nachádza len 10 min. pešou chôdzou. Milovníci cyklistiky si prídu na svoje na 50km dlhej cyklotrase, ktorá vedie z Krásna až na Vychylovku, prípadne na náročnejšom okruhu Oščadnica - Veľká Rača - Krásno. V Krásne sa taktiež nachádza rozvíjajúci sa priemyselný park, v ktorom je veľký potenciál vytvorenia nových pracovných miest.

Administratívny poplatok RK 200€.

Nájdete na stránke realityMGM.sk pod ID ZA016065. Call centrum tel: 0910 86 11 86.



Cena
Typ nehnuteľnosti Byty
Inzertná kategória Prenájom
Stav nehnuteľnosti Novostavba
Podlahová plocha 64.31 m2
Kraj Žilinský kraj
Okres Čadca
Obec Krásno nad Kysucou
Časť Kalinov


Okres Čadca je okres v Žilinskom kraji na Slovensku. Má rozlohu 760,62 km², žije tu 89 952 obyvateľov a priemerná hustota zaľudnenia je 118 obyvateľov na km² (údaje k 31. 12. 2019). Správne sídlo okresu je mesto Čadca.

Okres leží v severnej časti regiónu Kysuce. Na severe hraničí s Poľskom a na západe s Českom. Hlavným tokom je rieka Kysuca. Do okresu Čadca patrí 23 obcí, z toho tri so štatútom mesta (Čadca, Turzovka a Krásno nad Kysucou). Väčšina inštitúcii (úradov) a škôl okresu sídli v Čadci, no niektoré školy otvorili svoje pobočky aj v iných mestách. V obciach Skalité, Čierne, Svrčinovec a Oščadnica sa hovorí aj goralským alebo poľským nárečím.

Zdroj: wikipedia


Žilinský kraj

Demografia

K 21. máju 2011, bolo na území Žilinského kraja 144 948 domov, t.j. 13,5 % z celkového počtu domov v Slovenskej republike (z toho 120 788 obývaných, t.j. 83,3 %). Žilinský kraj bol v počte domov na druhom mieste za Nitrianskym krajom (podiel 16,2 %). Spomedzi okresov kraja najvyšší počet domov sa nachádzal v Žiline 20,3 % a najmenej v Turčianskych Tepliciach 3,3 %. Obývaných domov bolo v okrese Žilina 21,1 % z úhrnu za kraj a v Turčianskych Tepliciach 3,2 %.

Geologická charakteristika

Celé toto hornaté územie spadá z geomorfologického hľadiska do Západných Karpát. Horské masívy v tejto lokalite sa sformovali pomerne nedávno, v paleogéne. Zásluhou pohybov príkrovov sa vyzdvihovali pôvodné morské sedimenty, z ktorých postupne vznikli impozantné údolia. Rieka Váh územie nápadne rozdeľuje na dve časti:

  • severná zahŕňa pohoria: Tatry, Skorušinské vrchy, Oravské Beskydy, Oravská Magura, Oravská vrchovina, Chočské vrchy, Krivánska Fatra, Kysucké Beskydy, Kysucká vrchovina a Javorníky
  • južná zahŕňa pohoria: Nízke Tatry, Veľká Fatra, Lúčanská Fatra a Strážovské vrchy

Dejiny

Po páde Veľkomoravskej ríše v roku 907, ku ktorej územie patrilo, bolo od 12. storočia prakticky až do roku 1918 súčasťou uhorského kráľovstva. V 13. storočí na obranu proti mongolským nájazdom bola vybudovaná sieť hradov (Hričov, Považský, Košecký, Lietavský, Strečniansky). 16. storočie znamenalo pre miestnych obyvateľov chudobu a strach, hlavne pred tureckou okupáciou a živelnými pohromami. Ku koncu 19. storočia tu bola zavedená železnica a v údolí Váhu začal prekvitať priemysel.


Stručná história Slovenska

Prvý štátny útvar Slovanov na území dnešného Slovenska bola Samova ríša (7. storočie), neskôr Nitrianske kniežatstvo (začiatok 9. storočia), ktorého spojením s Moravským kniežatstvom vznikla v roku 833 Veľká Morava. Od polovice 10. do konca 11. storočia sa územie Slovenska postupne začlenilo do Uhorska, ktoré sa v roku 1526 stalo súčasťou Rakúskej monarchie (Habsburskej monarchie), od roku 1867 nazývanej Rakúsko-Uhorsko. Po rozpade Rakúsko-Uhorska v roku 1918 bolo Slovensko súčasťou Česko-Slovenska až do roku 1993 (okrem obdobia samostatnosti počas vojnovej Slovenskej republiky). 1. januára 1993 vznikla rozdelením tohto štátneho útvaru samostatná Slovenská republika.

Slovenská republika je parlamentnou demokraciou, štátnym jazykom je slovenčina. Od 1. mája 2004 je Slovensko členom Európskej únie, od 21. decembra 2007 je členom Schengenského priestoru. Od 1. januára 2009 je 16. členom Európskej menovej únie – eurozóny a oficiálnou menou sa stalo euro, ktoré vystriedalo slovenskú korunu.